00











BMW Museum 2008München
Auftraggeber
BMW AG
Größe (qm)
5000
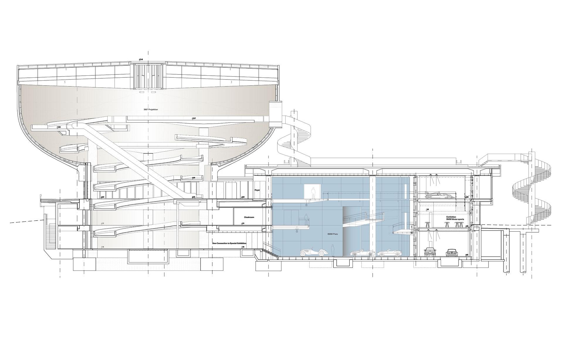
Im Rahmen einer Gesamtsanierung der Konzernzentrale wird das BMW Museum gestalterisch neu definiert. Die bisherige Museumsarchitektur der „Schüssel“ bleibt erhalten, benachbarte Gebäudeteile werden in die museale Nutzung integriert. Die Neukonzeption basiert auf Themenräumen, die durch eine Rampe, als Symbol für Mobilität und Bewegung, erschlossen werden. Sie verbindet die Ausstellungs- und Erlebnisorte. Die Idee der ursprünglichen Museumsarchitektur – Straßen und Plätze im umbauten Raum – findet ihre Fortsetzung in Form eines urbanen Raumerlebnisses aus Straßen und Häusern. Die mit medialen Mitteln dramatisierte Ausstellungsarchitektur bildet den eindrucksvollen Rahmen für die Exponate.
- Generalplanung in Zusammenarbeit mit dem Projektteam BMW Museum
- Architektur, Ausstellungsgestaltung, Szenografie
- ATELIER BRÜCKNER
- Tragwerksplanung mit
- Schlaich Bergermann und Partner
- Lichtplanung mit
- DELUX AG, Rolf Derrer
- Mediale Inszenierungen, Interaktive Installationen
- ART+COM
- Grafik Design, Visuelle Identität
- integral ruedi baur
- Visuelle Sinfonie
- TAMSCHICK MEDIA+SPACE
- Fotografien
- Marcus Meyer, Marcus Buck (Außenansicht)
best architects |
DMMA |
DP3D - Prädikat herausragend |
The International Architecture Award |
ADC Award |
Cannes Lions |
Annual Multimedia |
Automotive Brand Contest |
CLIO Awards |
D&AD |
DDC Award |
FAMAB Award |
iF Award |
International Property Awards |
LEAF Awards |
LIA London International Awards |
ADC*E |
Micheletti Award
Projektdetails

