00



Das Gutbrod 2017Stuttgart
Auftraggeber
Wirtschaftsförderung Region Stuttgart GmbH
Größe (qm)
240
Tags: Kultur
Themen: Politik
Formate: Bauen im Bestand
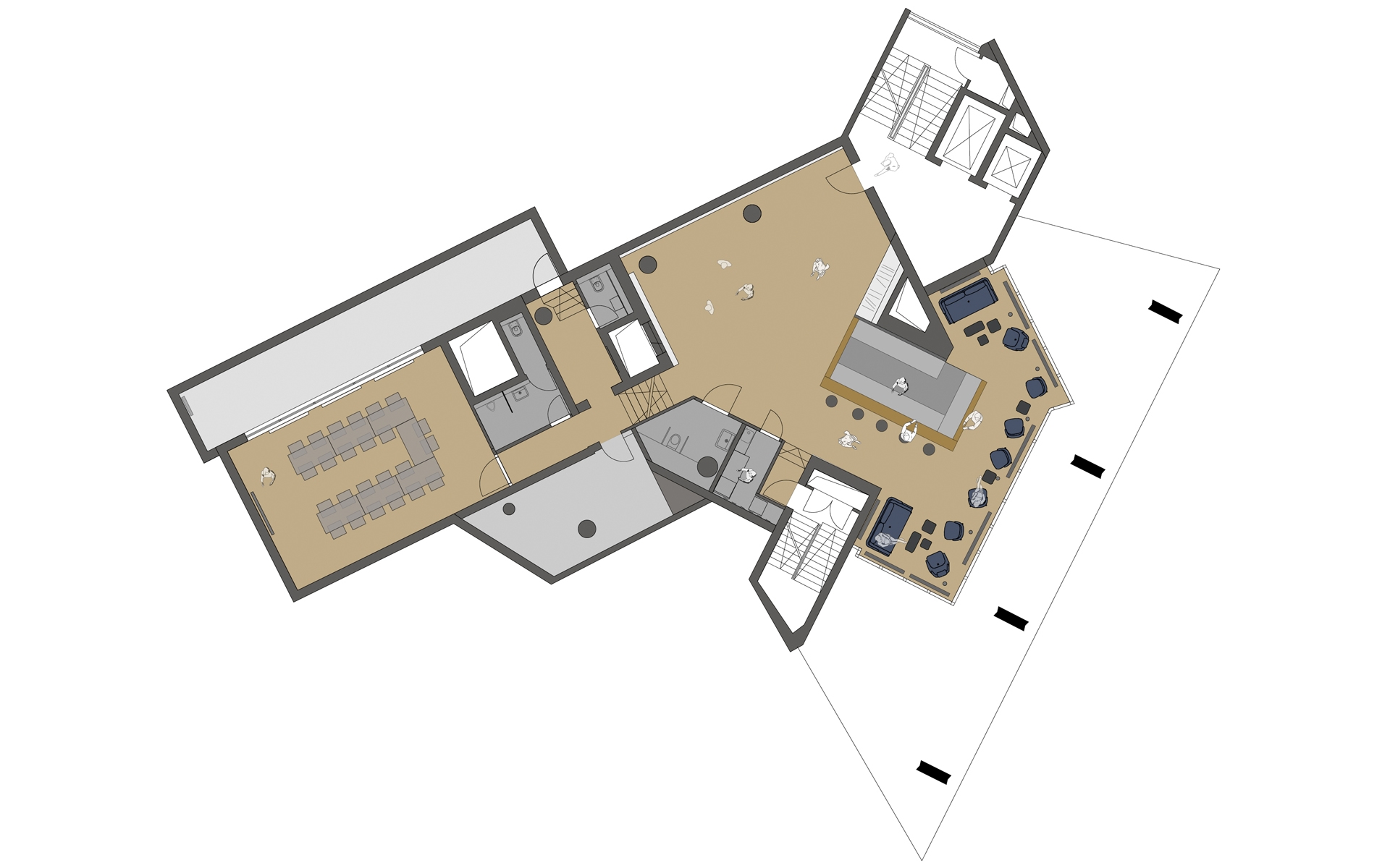
"Das Gutbrod" versteht sich als Treffpunkt der Region Stuttgart. Die Lounge mit angeschlossenem Seminarraum ist für 120 Personen ausgelegt. Eine großzügige Bar und eine farbig flexible, indirekte Beleuchtung tragen zur Multifunktionalität bei. Eine große Monitorwand und die Innovationswand mit Lochraster erlauben ständig wechselnde Präsentationen. Architektonische Elemente der Bauzeit wurden behutsam frei gelegt und in das Gestaltungskonzept integriert. Die ursprüngliche Nutzung und Großzügigkeit kehren zurück, ohne die 1960er Jahre zu imitieren.
- Generalplanung, Szenografie
- ATELIER BRÜCKNER
- Lichtplanung mit
- LDE Belzner Holmes
- Medienplanung mit
- medienprojekt p2
- Fotografie
- Dirk Wilhelmy
Projektdetails
