00




Deutsches Hutmuseum 2014Lindenberg
Auftraggeber
Stadt Lindenberg i. Allgäu
Größe (qm)
1000
Tags: Kultur
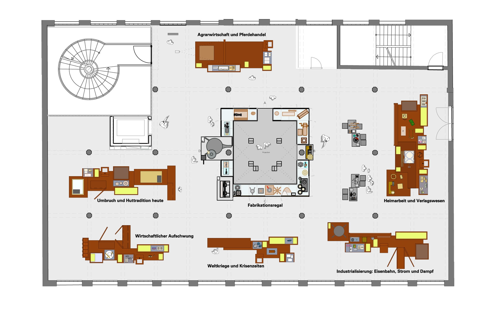
Die einstige Hutfabrik Ottmar Reich, inmitten der kleinen Stadt Lindenberg im Westallgäu gelegen, kehrt zu ihren Wurzeln zurück. Das neue Hutmuseum präsentiert Stadtgeschichte, Mode und Fabrikation in einem lebendigen Gewand. Bis in die 1970er Jahre hinein galt die Gemeinde als eines der wichtigsten Hutzentren Deutschlands. Mit ihrem Exportschlager, dem Matelot – auch als Kreissäge bekannt, gewann sie enorme Popularität, auch über die Landesgrenzen hinaus bis in die USA. Die jahrhundertealte Huttradition Lindenbergs wird nun neu erfahrbar gemacht.
- Ausstellungskonzept, Szenografie
- ATELIER BRÜCKNER
- Lichtplanung
- LDE Belzner Holmes
- Medienplanung
- intermediate engineering
- Mediengestaltung und -produktion
- 2av
- Ausstellungsgrafik
- Emde Gestaltung
- Architektur/Umbau
- JAUSS + GAUPP
- Fotografien
- Daniel Stauch
Bayerischer Museumspreis |
Micheletti Award |
Focus Open |
German Design Award
Projektdetails

