00




Forum Wissen 2022Göttingen
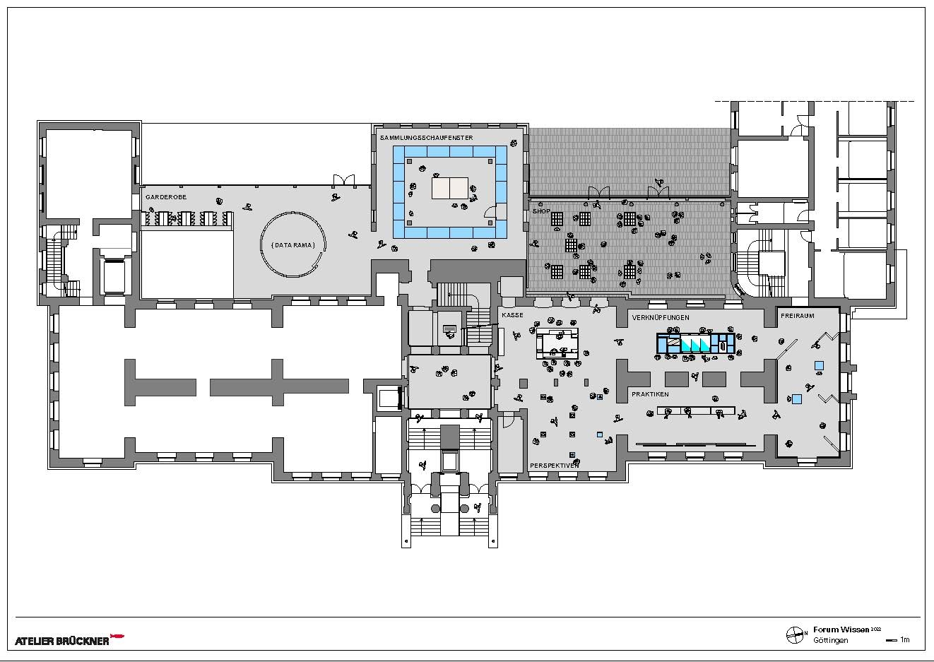
Das historische Gebäude des ehemaligen Naturkundemuseums ist nun das "Forum Wissen" der Universität Göttingen. Die Ausstellung erstreckt sich über zwei Etagen und 17 Ausstellungsräume und beschäftigt sich mit dem Thema “Wissen schaffen” – und der Wissenschaft an sich. Besucherinnen und Besucher tauchen über begehbare Raumbilder in Prozesse und Praktiken wissenschaftlichen Arbeitens ein. Mittels einer App erschließen sie sich die Sammlung, tragen Objekte zusammen und erforschen diese methodisch, sodass sie selbst zu Forschenden werden. Neben der Vermittlung von wissenschaftlichen Methoden, trägt das Forum Wissen auf diese Weise simultan selbst dazu bei, dass Wissen entsteht.
- Generalplanung, Ausstellungsgestaltung, Szenografie, Mediendesign, Grafikdesign
- ATELIER BRÜCKNER
- Lichtplanung mit
- BELZNER HOLMES LIGHT-DESIGN
- Medienhardwareplanung mit
- medienprojekt p2
- Architektur / Umbau
- gildehaus.partner architekten BDA
European Museum of the Year Award
Projektdetails


