00

Fruchtkasten Herrenberg
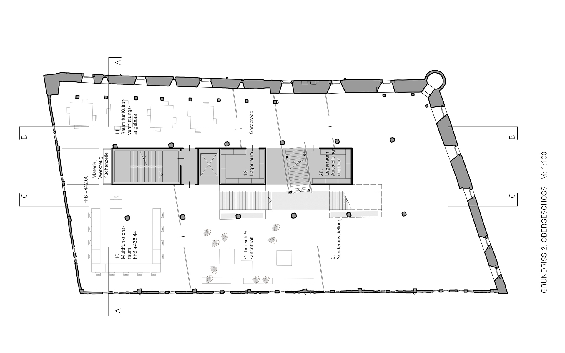
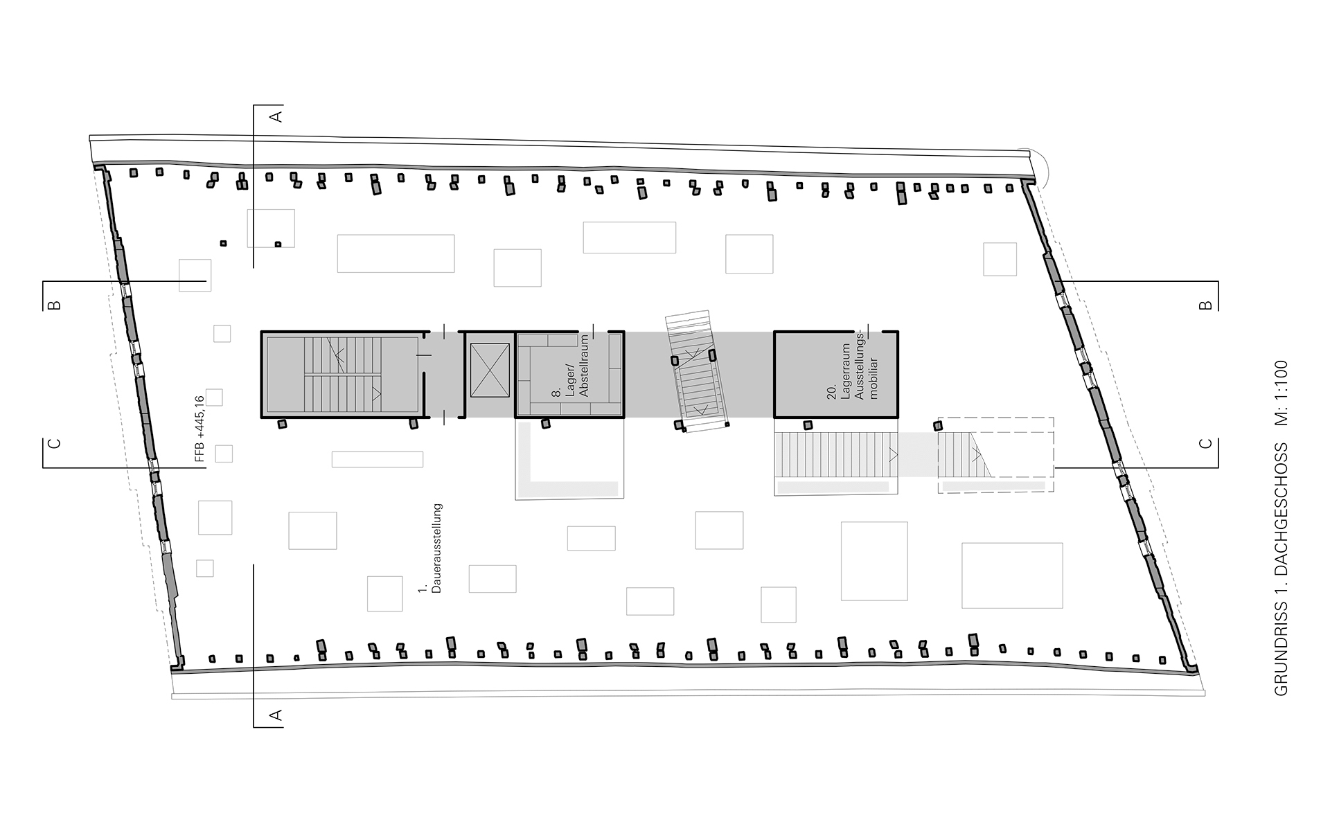
Am Rande der Herrenberger Altstadt liegt der "Fruchtkasten", ein beeindruckendes mittelalterliches Speichergebäude mit imposanter Holzkonstruktion. In Größe und Bedeutung ist er prägend für die Stadt. Nun wird das Gebäude saniert; seine Grundstruktur bleibt erhalten und wird gestärkt. Dies betrifft die historische Konstruktion und die offenen Raumstruktur des ehemaligen Speichers. Statt einer Aufteilung in abgetrennte Räume wird über alle Geschosse hinweg ein Kubus eingestellt, der die dienenden Funktionen des neuen Ausstellungshauses aufnimmt. Den Kubus begleitet eine "Himmelsleiter" als Haupterschließung.
- Architektur, Ausstellungsgestaltung und Szenografie
- ATELIER BRÜCKNER
- Energiekonzept mit
- Transsolar Energietechnik GmbH
- Visualisierungen
- ATELIER BRÜCKNER
Projektdetails


