00


Haier Home Appliance Museum 2019Qingdao
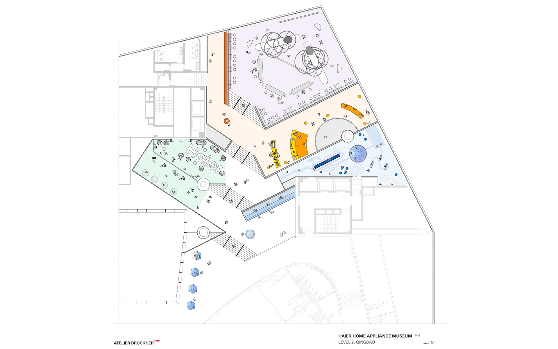
Das Haier Home Appliance Museum macht Geschichte, Entwicklung und neue Technologien der Haushaltsgeräte auf unterhaltsame Weise erlebbar: Im Bereich „History“ repräsentieren fünf Bühnenbilder die 1930’er sowie die 1960’er bis 1990’er Jahre. Filmprojektionen zeigen sie belebt – ein Zusammenspiel, das die Gesellschaft und Technik der jeweiligen Zeit greifbar werden lässt. Das „Village“ stellt die Haier Marken in einzelnen Häusern vor. Merkmale und Highlights werden herausgestellt, wobei der Schwerpunkt auf Smart Home und zukünftigem Wohnen liegt. Die oberste Ebene des Museums ist den Kindern gewidmet. Farbige Themenräume laden sie zu einer Reise durch den Haier Kosmos ein.
- Szenografie, Ausstellungsdesign
- ATELIER BRÜCKNER
- Lichtplanung mit
- Belzner Holmes
- Medienplanung mit
- medienprojekt p2
- Medien- und Filmproduktion
- Gush Films
- Architektur
- Snøhetta, DC Alliance
Projektdetails


