


Haus der Parlamentsgeschichte 2016Düsseldorf
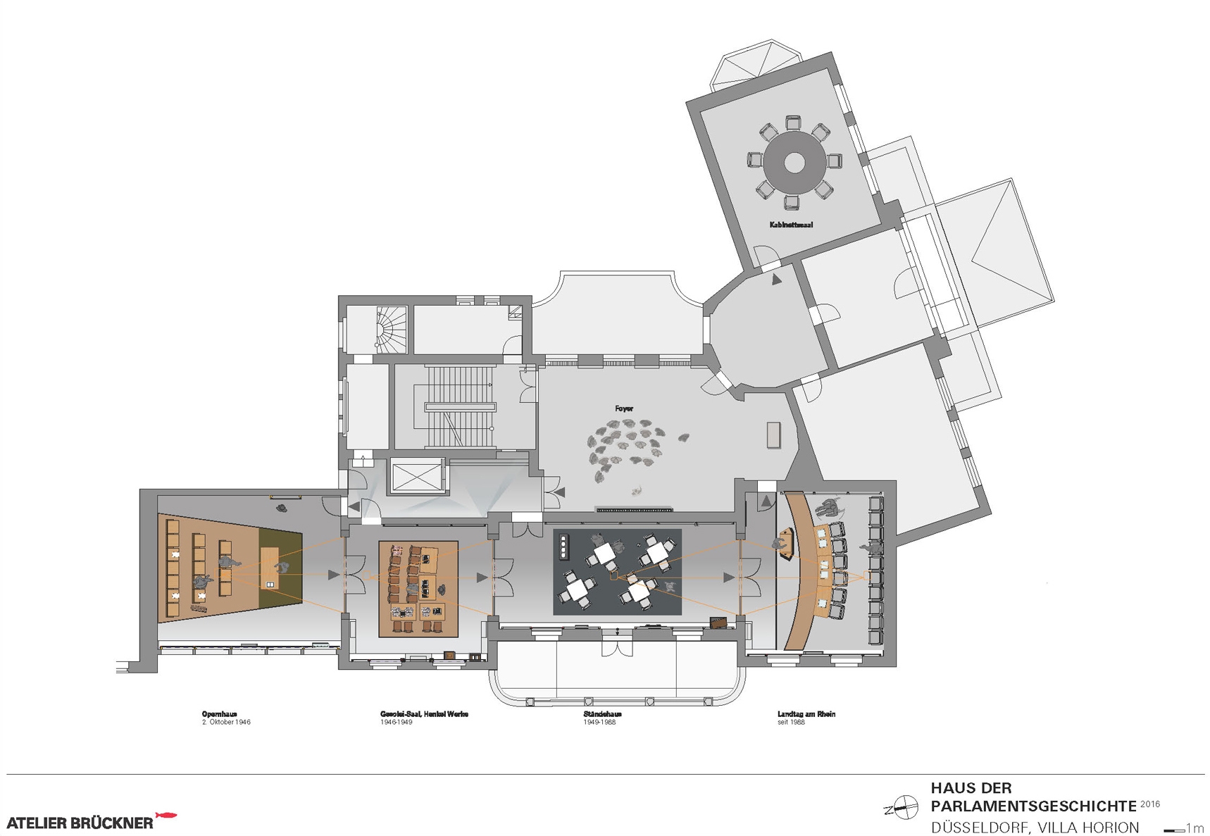
Landtagsgeschichte erkunden: Der dialogisch aufgebaute Ausstellungsrundgang vermittelt sieben Jahrzehnte Landtagsgeschichte, von den Anfängen im Jahr 1946 bis in die Gegenwart. Die Besucher fühlen sich an die Orte zurückversetzt, an denen das Landesparlament seit seiner konstituierenden Sitzung getagt hat: vom Opernhaus Düsseldorf (2. Oktober 1946), über den provisorischen Sitzungssaal in den Henkel Werken (1946-1949) und dem revitalisierten Ständehaus (1949-1988) bis hin zum Neubau am Rhein. Mit jedem Raum betreten sie einen neuen Tagungsort und damit zugleich einen neuen Zeitabschnitt. Die Rauminszenierungen bilden den Rahmen für den Dialog zwischen Guide und Besucher. Lichteinstellungen, Film- und Bildeinspielungen werden individuell vom Besucherdienst gesteuert. Sie leiten den Blick und verändern den Raumeindruck. Im Gespräch mit dem Guide entsteht ein aktiver Zugang zur Geschichte.
- Ausstellungsgestaltung, Szenografie
- ATELIER BRÜCKNER
- Lichtplanung
- Peter Andres Beratende Ingenieure für Lichtplanung
- Medienplanung
- Erben Elektronische Medien
- Medienproduktion
- ATELIER BRÜCKNER
- Fotografien
- Bernd Schälte, Daniel Stauch
