00



Het Scheepvaart Museum 2011Amsterdam
Auftraggeber
Het Scheepvaartmuseum
Größe (qm)
1230
Tags: Kultur
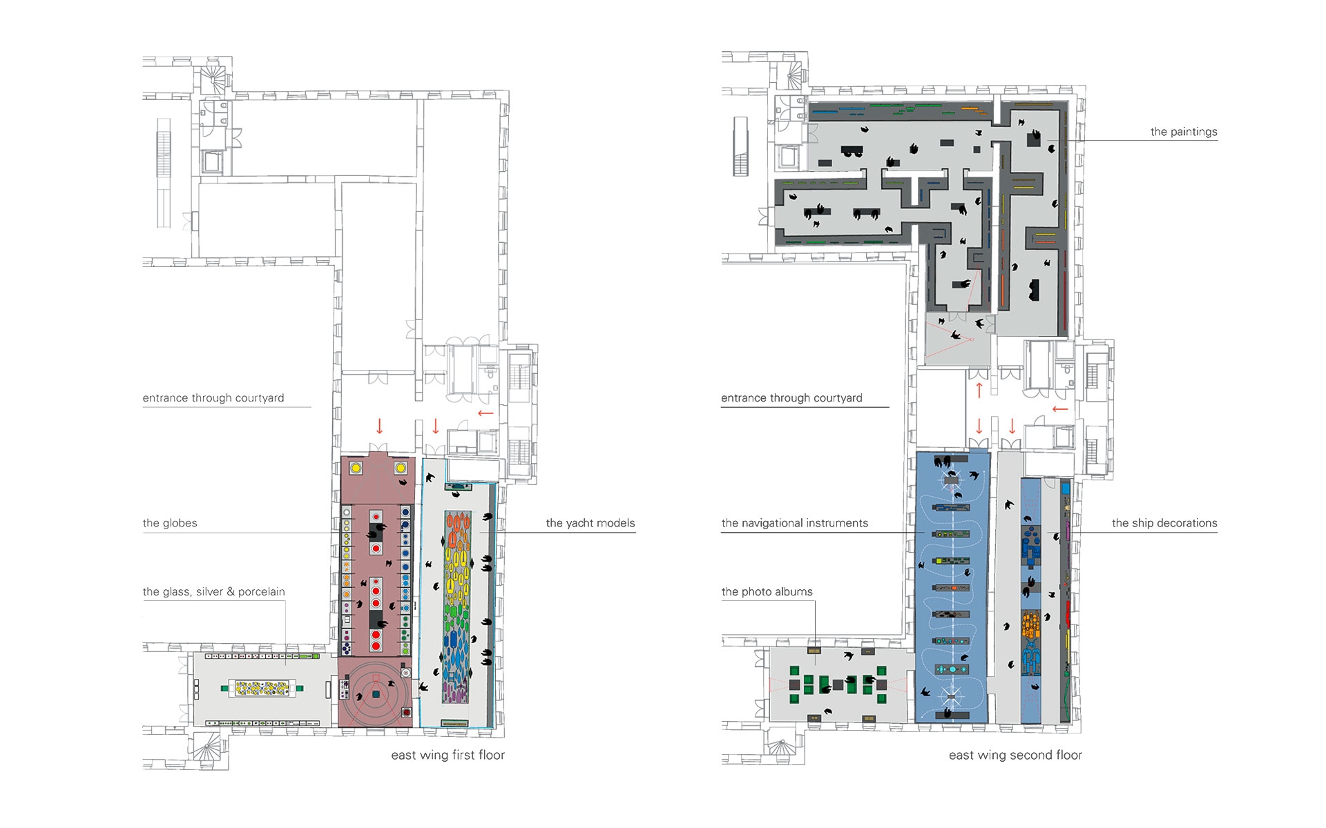
Die Objektgalerie im niederländischen Schifffahrtsmuseum spricht den kunstinteressierten Besucher mit Affinität zu maritimen Themen an. Die hochkarätige Museumssammlung wurde in sieben Objektgruppen gegliedert. Neben den wertvollen, einmaligen Globen und der bedeutenden Sammlung an Navigationsinstrumenten sind es Schiffsmodelle, maritime Gemälde, Schiffsornamente, Fotoalben und kunsthandwerkliche Objekte aus Glas, Silber und Porzellan, die auf einer Ausstellungsfläche von rund 1200 Quadratmetern in Szene gesetzt sind. Für jede Objektgruppe wurde ein spezifisches Raumbild entwickelt. Das Exponat ist Ausgangspunkt und zugleich integrativer Bestandteil dieses Raumbildes.
- Ausstellungskonzeption und -gestaltung, Szenografie
- ATELIER BRÜCKNER
- Lichtplanung
- Lichtontwerpers
- Medienproduktion
- Kiss the Frog
- Ausstellungsgrafik mit
- attraktive grautöne
- Architektur/Umbau
- Dok Architects
- Fotografien
- Michael Jungblut
DDC Award |
red dot |
ADC Award
Projektdetails
