00



Wagenhallen 2020Stuttgart
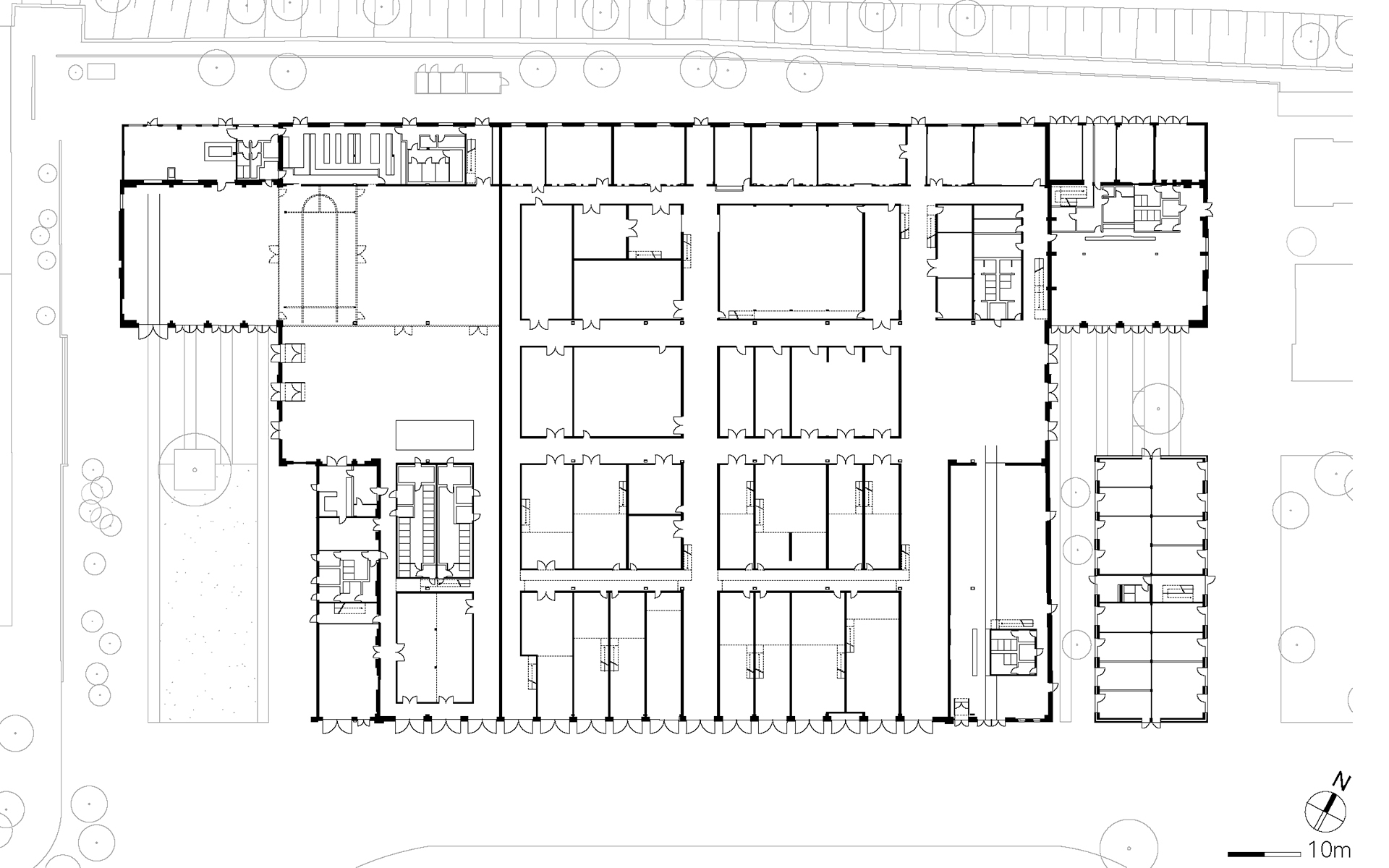
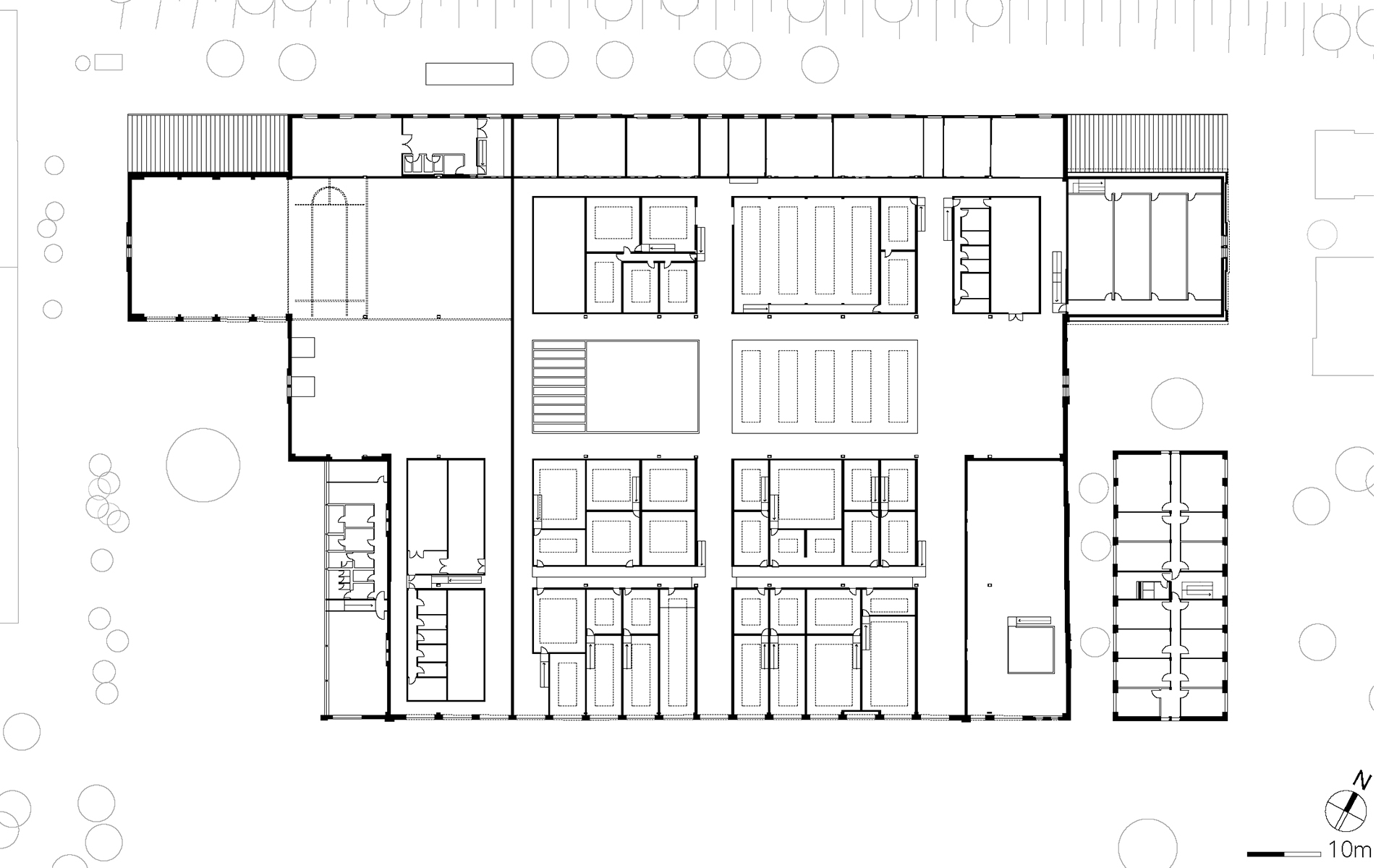
Die Stuttgarter Wagenhallen strahlen mit ihren kulturellen Nutzungen weit über die Landeshauptstadt hinaus. Eine Sanierung stand an. Die ehemalige Lokomotiv-Remise, ab 1895 errichtet, sollte als attraktiver Ort erhalten bleiben. Die ursprüngliche Gestalt der Wagenhallen wurde aus dem bestehenden Ensemble herausgeschält, die Originalsubstanz behutsam restauriert und die lebendigen Oberflächen konserviert. Kontrastierend zum historischen Stahltragwerk und den Außenmauern aus Backstein traten in farbreduzierter Ausführung die notwendigen neuen Einbauten und baulichen Ergänzungen. Die verschiedenen Zeitschichten sind klar ablesbar.
- Planung, Architektur, Szenografie
- ATELIER BRÜCKNER
- Landschaftsplanung mit
- G2-Landschaftsarchitekten, Gauder+Gehring
- Tragwerksplanung
- Bornscheuer Drexler Eisele GmbH
- Bauleitung
- Wenzel + Wenzel GmbH
- Fotografien
- ATELIER BRÜCKNER und Daniel Stauch (1, 3, 4)
Beispielhaftes Bauen |
The International Architecture Award |
Otto-Borst-Preis |
ICONIC Awards |
Hugo-Häring-Preis |
German Design Award |
Deutscher Ziegelpreis |
Industriebaupreis
Projektdetails

