00




Das Zukunftsmuseum 2021Nuremberg
- Client
- Deutsches Museum
- Area (sqm)
- 2900
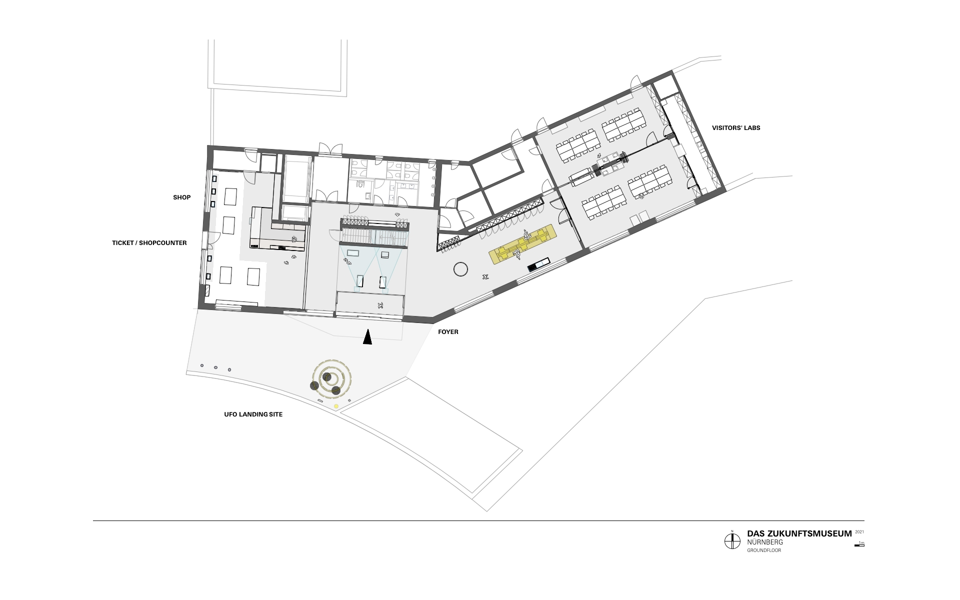
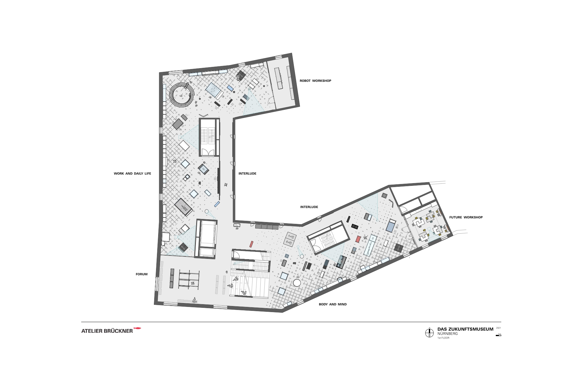
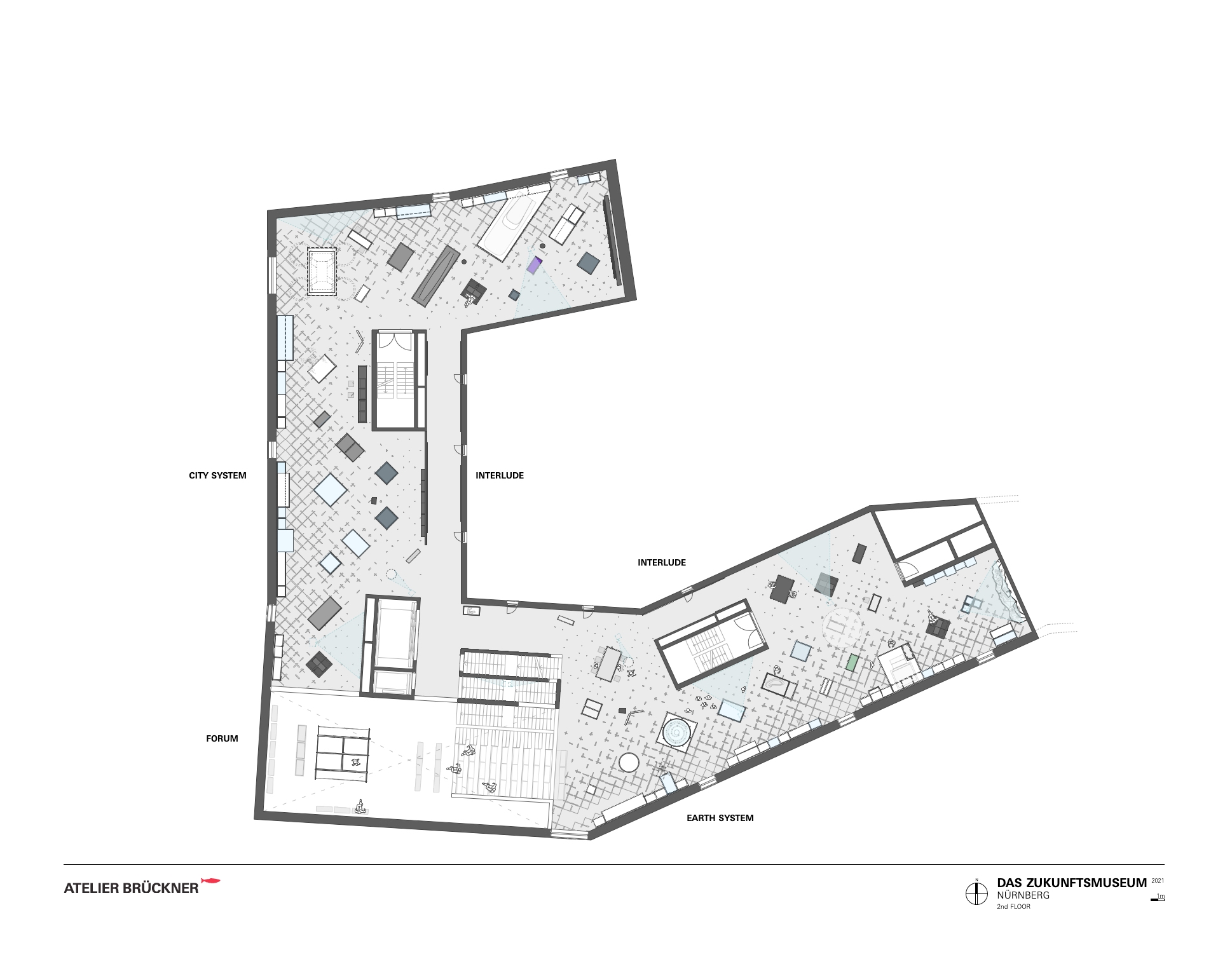
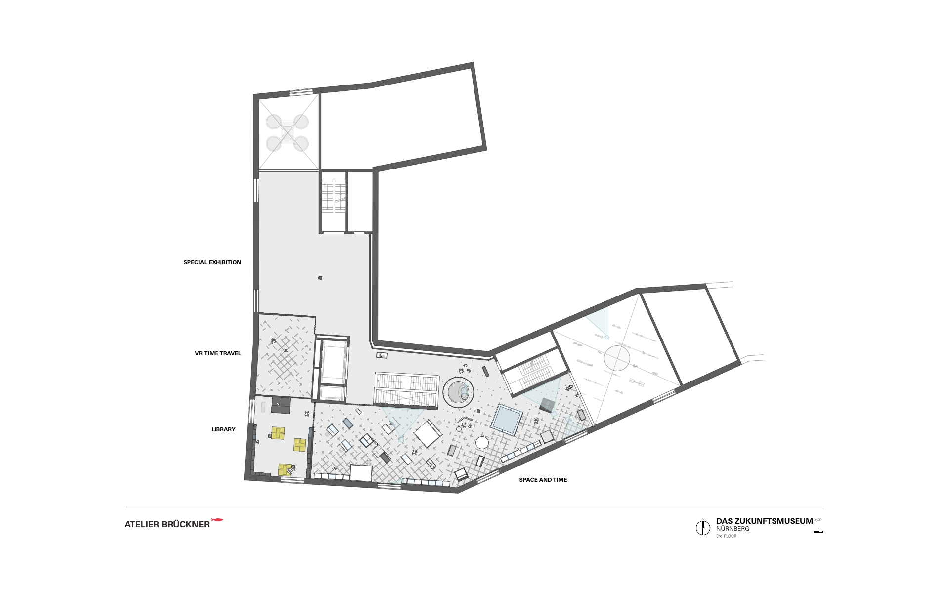
The Deutsches Museum Nuremberg is showcasing current research projects that may already influence our lives tomorrow. They concern the direct living environment of the individual: 'Work and Daily Life' and 'Body and Mind'. Furthermore, it is about 'City System' and the 'Earth System'. One exhibition area is also dedicated to mankind's dream of travelling through 'Space and Time'. Here the conquest of space is thematized and an understanding of the universe is conveyed. Participation laboratories and a virtual arena complete the permanent exhibition.
- General Planning, Exhibition Design, Scenography, Graphic Design
- ATELIER BRÜCKNER
- Light Planning with
- Belzner Holmes
- Media Planning with
- medienprojekt p2
- Architecture
- Staab Architekten
Micheletti Award |
European Museum of the Year Award |
iF Award |
IDA Design Awards
Project details



