00



Inside the Station 2013Brussels, Palais Tour & Taxis
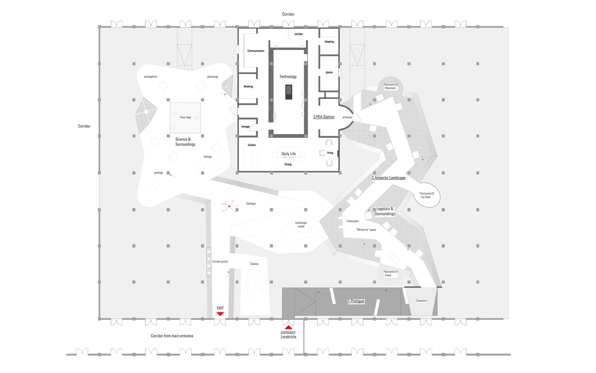
Let`s go to the South Pole! The exhibition "Inside the Station" takes you on an exciting as well as informative expedition to the Antarctic, where the polar research station "Princess Elisabeth Antarctica" is located. Kitchen, communication and doctor's rooms have been reconstructed. A technical room is placed in the centre. This is where the complex system of the zero emission polar research station is made comprehensible on a media table. Up to 30 scientists are living at the research station at the same time. Their research areas and their way of work are presented embedded in a pearly-white room narrative.
- General Planning, Exhibition Concept and Design, Scenography
- ATELIER BRÜCKNER
- Light Planning with
- LDE Belzner Holmes
- Media Planning with
- medienprojekt p2
- Photography
- Michael Jungblut
Project details
