00




Panasonic – Blue Box 2007Berlin, IFA
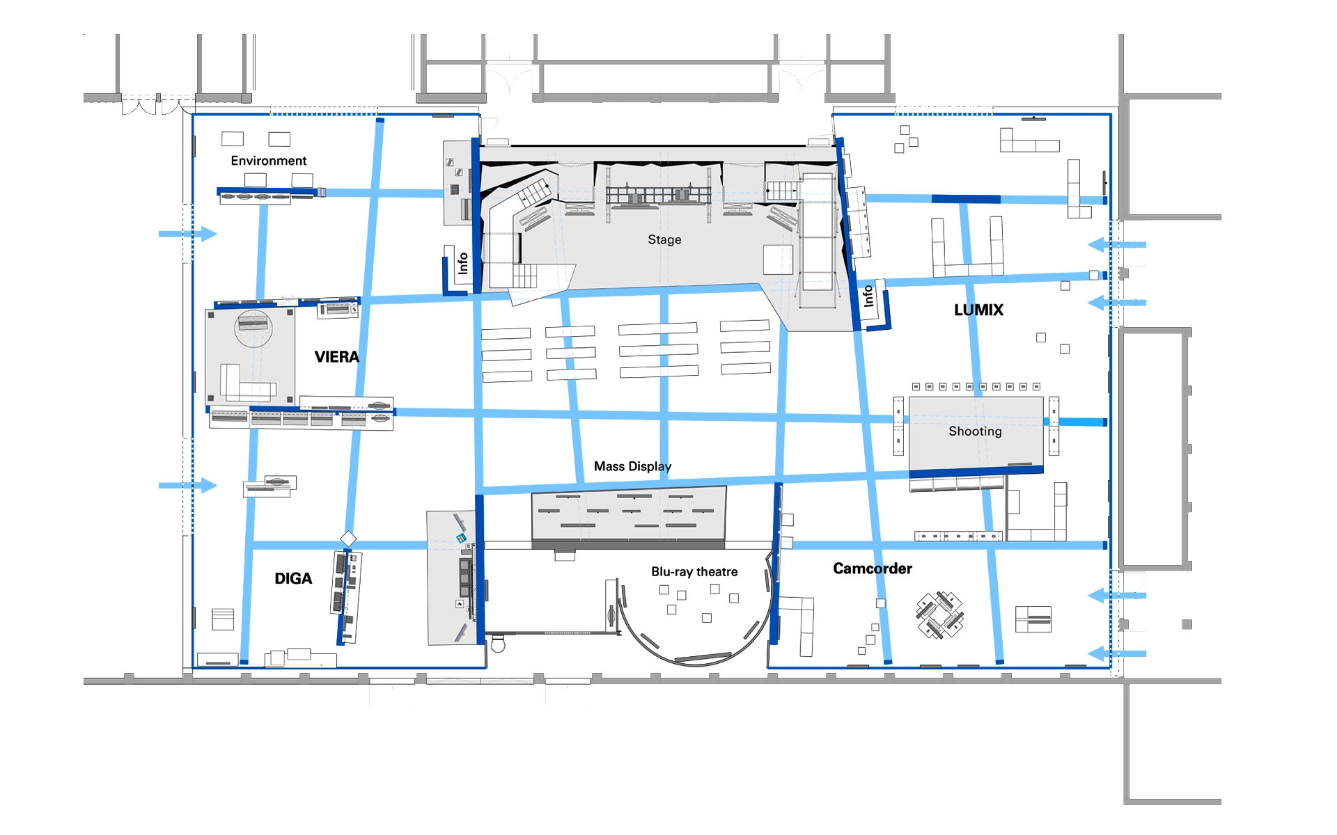
At IFA 2007 the motto "Living in High Definition" is translated into a three-dimensional stage. The heart of the presentation is a 10-metre wide and 5-metre high display from 23 Viera screens, which becomes the pulse of the exhibition. From this largest ever realized full high definition mass display visual impulses are spread out to the surrounding walls. The visitor dives into a media world that provides different moods in rhythmical sequences, gliding like a swimmer through the product worlds.
- Fair-stand Design and Concept
- ATELIER BRÜCKNER
- Film and Media Planning with
- TAMSCHICK MEDIA+SPACE
- Graphic Design with
- attraktive grautöne
- Photography
- Markus Mahle
Animago |
World Media Festival
Project details
